2026-01-22
2010-2024年福田全系車型維修手冊電路圖系列接線拆裝扭力故障診斷針腳定義資料更新
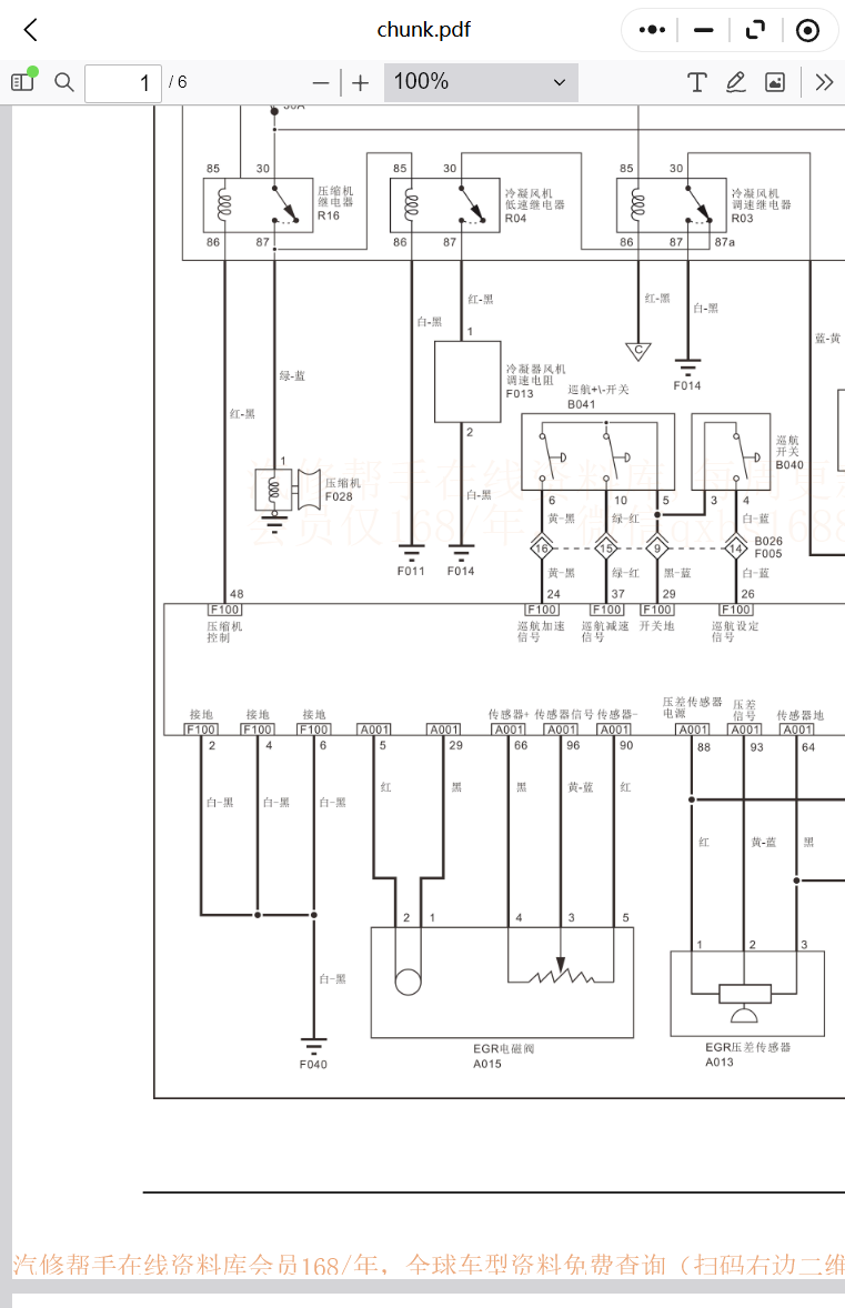
資料來源:汽修幫手資料庫
汽修幫手資料庫提供各大廠家車型維修手冊、電路圖、新車特征、車身鈑金維修數據、全車拆裝、扭力、發動機大修、發動機正時、保養、電路圖、針腳定義、模塊傳感器、保險絲盒圖解對照表位置等,并長期保持高頻率資料更新
覆蓋車型:伽途i 伽途im 伽途V 圖雅諾 圖雅諾 EV 圖雅諾S 拓路者 EV 拓陸者 拓陸者E系 火星皮卡 祥菱 EV 祥菱M 祥菱Q 祥菱V 薩普 薩普V 征服者 薩瓦納 蒙派克E 風景 風景G5 EV 風景G7 風景G7 EV 風景G9 風景V 風景V EV 風景G5 大將軍
北京福田伽途i系列維修手冊和電路圖
北京福田伽途im系列維修手冊維修手冊和電路圖
福田伽途V維修手冊和電路圖
福田圖雅諾維修手冊和電路圖
福田圖雅諾EV維修手冊和電路圖
福田圖雅諾S維修手冊和電路圖
福田拓陸者EV維修手冊和電路圖
福田拓陸者維修手冊和電路圖
福田拓陸者E維修手冊和電路圖
福田火星皮卡維修手冊和電路圖
福田祥菱EV維修手冊和電路圖
福田祥菱M維修手冊和電路圖(天然氣)
福田祥菱M維修手冊和電路圖(汽油版)
福田祥菱Q小康H16產品維修手冊和電路圖
福田祥菱V維修手冊和電路圖
福田薩普維修手冊和電路圖
福田薩普V征服者維修手冊和電路圖
福田薩瓦納維修手冊和電路圖
福田蒙派克E級維修手冊和電路圖
福田風景客車維修手冊和電路圖
2022年福田風景G5EV維修手冊和電路圖
福田風景G7維修手冊和電路圖
福田風景G7 EV維修手冊和電路圖
福田風景G9維修手冊和電路圖
福田風景V系列維修手冊和電路圖
福田風景V電動車維修手冊和電路圖
福田風景G5電路圖
福田大將軍G9電路圖









